Строим быстровозводимые дома, дачи и офисы из морских контейнеров с гарантией до 5 лет!
Компания Cubic House является непосредственным производителем.
Чем хорош Ваш новый дом?
Реализуем Ваш дизайн проект и визуализацию в короткий срок.
CUBIC HOUSE стремится больше к экслюзиву и мы не боимся тяжелых и нестандартных проектов.
Последнее время дома из морских контейнеров распространились по всему миру. Все чаще мы можем видеть проекты таких домов. Большой выбор цветов и возможность создавать различные конфигурации позволяют удовлетворить любые пожелания заказчика.
производство модуля до 4 недель
монтаж сложных модулей на объекте от 2-5 дней
дополнительный модуль к действующему до 4 недель
круглогодичное производство
круглогодичный монтаж на вашем объекте
за счет собственного производства, по сравнению с капитальным зданием аналогичной площади
использовать только модуль или соединять его с уже построенным модульным домом
декоративных решений для оформления фасадов и интерьера
для бизнеса по вашему brand book
использование модулей в сейсмоопасных районах с неблагоприятным климатом до -50 °C
Мы организуем доставку даже в самые отдалённые регионы и построим идеальный объект для жизни или бизнеса
Дозиметр СОЭКС Квантум внесен в реестр средств измерения (Сертификат об утверждении типа средства измерений № 86401-22, выдано 10 августа 2022г. Федеральным агентством по техническому регулированию и метрологии)
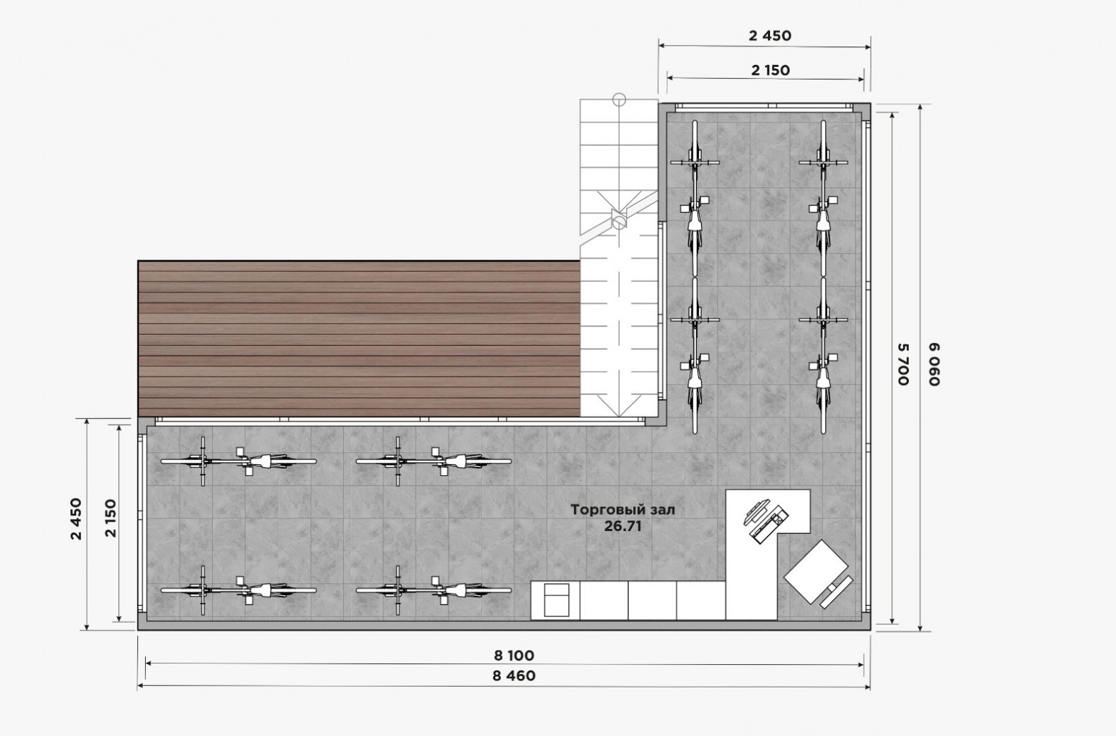
Офис из контейнера | 20 футов DC
Каждый из нас уже видел такие точки. Идеальное решение как для стартапа, так и для филиала крупной компании. Благодаря простоте установки и небольшому размеру возможна установка почти в любом месте города. Большой выбор цветовых решений позволит подобрать вариант подходящий под любой корпоративный цвет. Стильное современное решение уж точно не оставит вас незамеченным.
Стоимость от 950 000 ₽
Выбор местоположения
Мы свяжемся с Вами в течение дня.