Этот дом станет идеальным местом для вашей семьи, где каждый найдет свое пространство, а общие зоны создадут атмосферу тепла и единства.
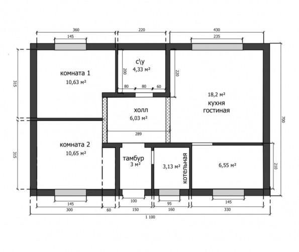
Две уютные комнаты (10,63 м² и 10,65 м²) — идеальны для детских или спален родителей. Здесь можно разместить кровати, рабочие столы и игровые уголки, обеспечив личное пространство для каждого члена семьи.
Большая кухня-гостиная (18,2 м²) — сердце дома, где можно собираться за семейными ужинами, принимать гостей или просто отдыхать вместе. Здесь найдется место и для кухонного гарнитура, и для мягкого дивана, и для обеденного стола.
Холл (6,03 м²) — удобная переходная зона, которая может служить небольшим коридором или местом для хранения вещей.
Тамбур (3 м²) — защитит от холода и сквозняков, а также станет местом для хранения обуви и верхней одежды.
Котельная (3,13м2) — обеспечит дом теплом и горячей водой, а помещение (6,55м2) можно использовать под небольшую комнату, кабинет или прачечную.
Почему здесь будет хорошо семье?
✔ Гармоничное зонирование — разделение на личные и общие зоны создает баланс между уединением и совместным времяпрепровождением.
✔ Удобная планировка — все необходимое под рукой, а компактные, но функциональные комнаты экономят время на уборку.
✔ Возможности для обустройства — в доме есть все, чтобы создать уютный интерьер, а свободные площади (например, холл или тамбур) можно адаптировать под нужды семьи.
Этот дом — не просто жилье, а место, где будут расти дети, собираться родные и создаваться семейные традиции. Здесь вашей семье будет по-настоящему комфортно и радостно!
Выбор местоположения
Мы свяжемся с Вами в течение дня.